ДМ-48 №433

Цена строительства от 1 200 000 ₽* * Стоимость не является окончательной
Заявка на консультацию
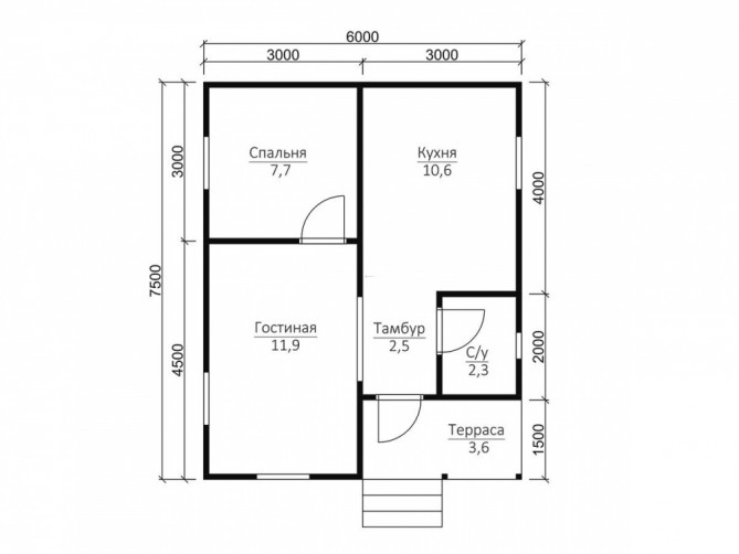
  • Общая площадь 38 м2
  • Длина 6 м
  • Ширина 7.5 м
  • Материал стен Профилированный брус
  • Количество этажей 1
  • Подвал Нет
  • Мансарда без мансарды
  • Гараж Нет
  • Терраса Да
  • Проживание Круглогодичное
  • Количество комнат 2
  • Количество спален 1
  • Количество санузлов 1
  • Вид проекта дом
  • Застройщик МАЛОЭТАЖНЫЕ ДОМА
  • Архитектурный стиль Классический
  • Крыша Двускатная
  • Можно купить домокомплект Да
  • Модульный тип строения Нет
Планировки
Описание проекта

Проект одноэтажного дома из бруса в компании малоэтажные дома , общая площадь которого составляет 38.6 кв.м., – это эксплуатационный надежный проект дома из бруса, функциональность и изысканный дизайн.

Проект дома из бруса 48 отличается удобной экспликацией помещений: удобная кухня, просторная светлая гостиная и комфортная спальня дома из бруса Во всех жилых комнатах проектом предусмотрены зимние двойные окна и деревянные двери. На входе в дом из бруса стоит надежная металлическая дверь.

Законченный вид дому из бруса придает двускатная, надежно защищающая строение от снега и непогоды.

Экологическая чистота деревянного дома из бруса пиломатериала и свойство натурального дерева «дышать» - преимущества, обусловившие популярность домов из бруса. Двойные оконные рамы домов из бруса, монолитная структура домов из бруса и дополнительный слой теплоизоляции сберегают тепло и формируют комфортные условия для круглогодичного проживания в городе Новосибирск!

Вас может заинтересовать
Вас может заинтересовать

Выбор местоположения

Задать вопрос / написать нам

E-mail: domgis@mail.ru

Мы свяжемся с Вами в течение дня.

Тех. поддержка
Предмет обращения:
Тукущая страница

Мы свяжемся с Вами в течение дня.

Обратный звонок
Обратный звонок
Выберите ваш город
Пожаловаться

Объявление опубликовано.
Изменения сохранены

Период публикации - бессрочный, при условии подтверждения актуальности каждые 50 дней. Уведомления будут отправляться на Вашу электронную почту.

Выберите причину снятия с публикации

Снятые с публикации объявления не участвуют в поиске и недоступны для подробного просмотра.

Для повторной публикации нажмите «Вернуть в публикацию»