ДМК 66,21 №1093

Цена строительства от 1 405 312 ₽* * Стоимость не является окончательной
Заявка на консультацию
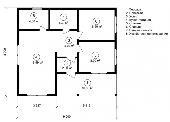
  • Общая площадь 66 м2
  • Длина 9 м
  • Ширина 8 м
  • Материал стен Каркасно-панельные
  • Количество этажей 1
  • Подвал Нет
  • Мансарда без мансарды
  • Гараж Нет
  • Терраса Да
  • Проживание Круглогодичное
  • Количество комнат 3
  • Количество спален 2
  • Количество санузлов 1
  • Вид проекта дом
  • Застройщик СК Домокомплект
  • Архитектурный стиль Современный
  • Крыша Двускатная
  • Можно купить домокомплект Да
  • Модульный тип строения Нет
Планировки
Описание проекта

В продаже ДМК 66.21

Уютный дом в котором есть все необходимое. Обратите внимание выделена хоз.комната почти 5 м.кв. Её можно легко присоединить к основной гостинной или разместить там рабочую кухню. Терраса 10.8 м.кв.

Выбор местоположения

Задать вопрос / написать нам

E-mail: domgis@mail.ru

Мы свяжемся с Вами в течение дня.

Тех. поддержка
Предмет обращения:
Тукущая страница

Мы свяжемся с Вами в течение дня.

Уведомление
Предмет обращения:
Тукущая страница
Обратный звонок
Обратный звонок
Выберите ваш город
Пожаловаться

Объявление опубликовано.
Изменения сохранены

Период публикации - бессрочный, при условии подтверждения актуальности каждые 50 дней. Уведомления будут отправляться на Вашу электронную почту.

Выберите причину снятия с публикации

Снятые с публикации объявления не участвуют в поиске и недоступны для подробного просмотра.

Для повторной публикации нажмите «Вернуть в публикацию»